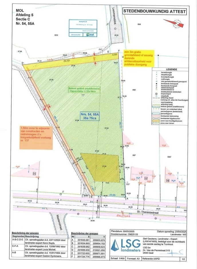
Bouwgrond van 35 are en 78 ca voor open bebouwing in Mol
Mol
Sint-Theresiastraat
75
€ 249 000
Deze bouwgrond van maar liefst 35 are en 78 ca voor open bebouwing, rustig gelegen in de Sint-Theresiastraat in Mol, biedt alles wat je nodig hebt binnen handbereik: winkels, openbaar vervoer, eetgelegenheden en scholen. De bouwgrond en de omliggende gemeenten zijn zeer vlot bereikbaar, met de N18 en de N71 in de nabijheid.
Beschrijving:
- Open bebouwing
- Oppervlakte: 3578 m²
- Bestemming: woongebied
- Kadastrale gegevens: afdeling 5, sectie C, nummer 54 en 55A
Voor meer informatie en de bouwvoorschriften contacteer ons via info@vastengoed.be of 014/72.73.74.
Wenst u een gratis schatting van uw eigendom? Contacteer ons vrijblijvend voor een afspraak!
Algemeen
| Adres: | Sint-Theresiastraat 75 Mol |
| Referentie: | V&G/G/4649 |
| Vraagprijs: | € 249.000 |
| Type: | Grond |
| Beschikbaar vanaf: | Bij akte |
| Ligging: | Aan bosrand, Aan rustige weg, Gemeente, Bosrijke omgeving |
| Perceeloppervlakte: | 3.578 m² |
| Perceelbreedte: | 37 m |
| Perceeldiepte: | 91 m |
| Type constructie: | Traditioneel |
Comfort
| Treinstation: | Ja - op 1000 m tot 1500 m |
| Busknooppunt: | Ja - op 1000 m tot 1500 m |
| Bushalte: | Ja - op 500 m tot 1000 m |
| Winkel: | Ja - op 1000 m tot 1500 m |
| School: | Ja - op 1000 m tot 1500 m |
| Kinderopvang: | Ja - op 1000 m tot 1500 m |
| Bank: | Ja - op 1000 m tot 1500 m |
| Ontspanning: | Ja - op 500 m tot 1000 m |
| Restaurant: | Ja - op 500 m tot 1000 m |
Wettelijke gegevens
| Kadastrale Oppervlakte: | 3.578 m² |
| Stedenbouwkundige vergunning: | Neen |
| Voorkooprecht: | Neen |
| Verkavelingsvergunning van toepassing: | Neen |
| Stedenbouwkundige bestemming: | Woongebied |
| Dagvaarding en herstelvordering: | Geen rechterlijke herstelmaatregel of bestuurlijke maatregel opgelegd |
| Overstromingsgevoelig: | Geen overstromingsgevoelig gebied |
| Overstromingsgebied: | Geen afgebakende zones |
| Overstromingskans perceel (P-score): | A |
| Erfgoed: | Geen beschermd erfgoed |
Ik wens meer informatie over volgend pand:
Mol
Sint-Theresiastraat
75
€ 249 000
Vertel een vriend
Mol
Sint-Theresiastraat
75
€ 249 000
Plan uw bezoek
Mol
Sint-Theresiastraat
75